
0531-88914116
13455126350
价格:5660-2.47万
功能:电动汽车VCU整车控制策略原理
产品型号:hx-ddqcvcuzckzylcxsyt-063-23
厂家定制:加工定制
起订量:1台起
作者:汽车教具 来源:汽车控制策略示教板
发布时间:2020-02-21 19:32:39 阅读次数:143
电话:13455126350
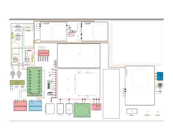
新能源汽车VCU整车控制策略原理与创新实验台结合基于电动汽车控制原理,结合物理部件仿真设计,下面由小编为您详细介绍!
该实验台主要由车辆控制器,高压动力系统,低压动力系统模块,运行状态指示器,电源开关,油门踏板,制动踏板,动力马达等模块,带原理图的面板,可移动平台等组成。
1.驾驶系统监控实验。
2.车辆控制策略工作示范实验;在车辆控制过程中动态演示每个系统的逻辑顺序。
3.学生独立建立控制系统实验。
4.低压上电逻辑实验;通过指示灯和指针表动态显示高压电路的上电和断电过程。
5.可以进行故障仿真评估实验。
6.电力系统监控实验;电力系统的工作过程可以通过灯光和指针指示器实时观察。
7.附有详细的教材和说明。
8.高压电源逻辑实验;通过指示灯和指针表动态显示高压电路的上电和断电过程。
9.车辆控制器开发原理仿真实验。

1.大功率电器控制实验。
2.低压电路控制实验。
3.电力系统充放电监控实验。
4.高压电路控制实验。
5.控制器编程及在线编程实验。
6.故障报警控制方式。
以上内容就是介绍的动汽车VCU整车控制策略原理与创新实验台:http://www.hxqcjxsb.com/xb-cl/569.html,希望对订购汽车控制策略示教板的朋友们有所帮助,可能会出现介绍错误,看到请马上联系我们改正,想了解其中更多内容以及行情资讯,欢迎收藏本站,也可电话联系我们索要设备的功能参数等,或者直接实地考察,也可电话微信沟通订购等!